Voir le bien
La Tour-de-Salvagny
(69890)
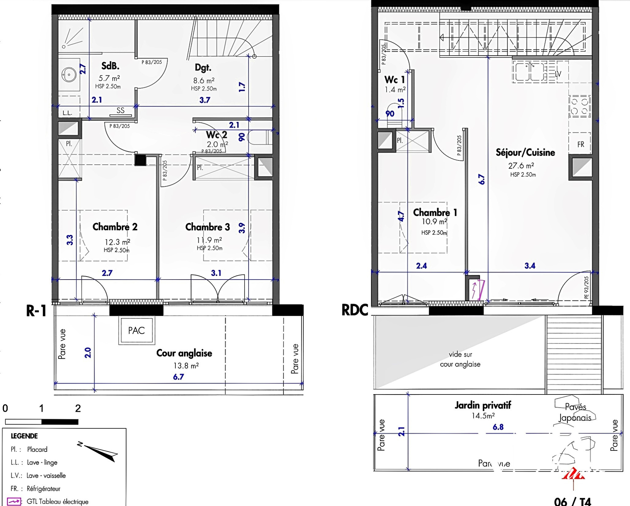
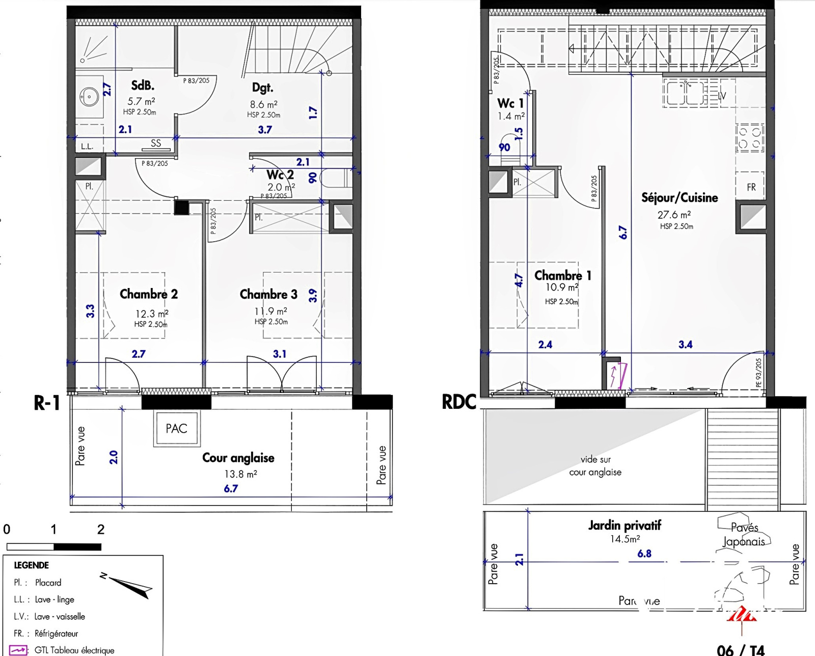
4 pièces - 79,19 m²
T4 lumineux avec terrasse et vue sur les Monts du Lyonnais – La Tour-de-Salvagny
435 000 €
Ref : DMVAP270006308
Voir le bien