Espace propriétaire
fr

Votre recherche

Lozanne (69380)

3 pièces - 64 m²

Appartement T3 de 64m2 / Centre Lozanne

299 000 €
Ref : VA664
Découvrir le bien
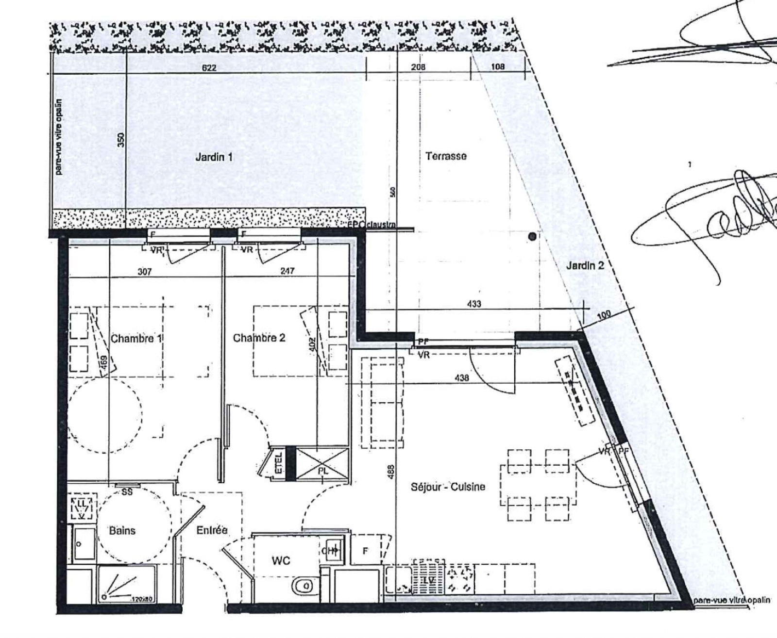
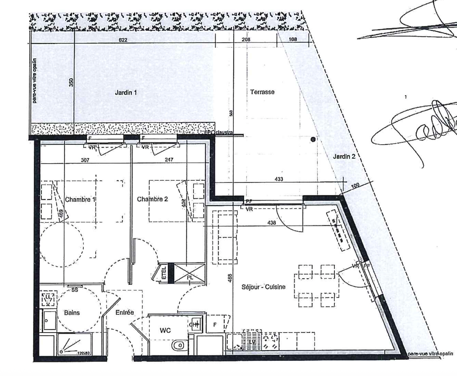
Au centre du Village de Lozanne, Appartement T3 de 64m2 en rez de jardin dans une résidence récente, sécurisée avec piscine. Hall d'entrée donnant sur le séjour/salle à manger. Cuisine US meublée et équipée. Deux chambres avec de nombreux rangements. Une salle d'eau et WC séparé. Une terrasse et un espace jardin avec vue dégagée. Possibilité d'achat d'un garage box fermé en supplément. Appartement en très bon état. Contact: Alexis Verbrugge O601329348
TRAD_ZEPHYR_Caracteristique TRAD_ZEPHYR_Valeurs
Code postal 69380
Nombre de chambre(s) 2
Nombre de pièces 3
Nombre de niveaux 1
Ascenseur OUI
TRAD_ZEPHYR_Caracteristique TRAD_ZEPHYR_Valeurs
Nb de salle d'eau 1
Cuisine Américaine
Type de cuisine Equipée
Mode de chauffage Gaz
Type de chauffage Radiateur
Format de chauffage Individuel
Interphone OUI
Visiophone OUI
Terrasse OUI
Cave NON
Année de construction 2019
TRAD_ZEPHYR_Caracteristique TRAD_ZEPHYR_Valeurs
Copropriété OUI
nombre de lots 42
TRAD_ZEPHYR_Caracteristique TRAD_ZEPHYR_Valeurs
Prix de vente 299 000 €
Les honoraires d'agence seront intégralement à la charge du vendeur  
Charges 100 €
DPE GES
Contacter pour ce bien
L'agence
Téléphone 04 69 84 15 15
Adresse
19 rue des Rosiéristes 69410 Champagne-au-Mont-d'Or

* Champ obligatoire

Les informations recueillies sur ce formulaire sont enregistrées dans un fichier informatisé par La Boite Immo agissant comme Sous-traitant du traitement pour la gestion de la clientèle/prospects de l'Agence / du Réseau qui reste Responsable du Traitement de vos Données personnelles. La base légale du traitement repose sur l'intérêt légitime de l'Agence / du Réseau. Elles sont conservées jusqu'à demande de suppression et sont destinées à l'Agence / au Réseau. Conformément à la loi « informatique et libertés », vous disposez des droits d’accès, de rectification, d’effacement, d’opposition, de limitation et de portabilité de vos données. Vous pouvez retirer votre consentement à tout moment en contactant directement l’Agence / Le Réseau. Consultez le site https://cnil.fr/fr pour plus d’informations sur vos droits. Si vous estimez, après avoir contacté l'Agence / le Réseau, que vos droits « Informatique et Libertés » ne sont pas respectés, vous pouvez adresser une réclamation à la CNIL. Nous vous informons de l’existence de la liste d'opposition au démarchage téléphonique « Bloctel », sur laquelle vous pouvez vous inscrire ici : https://www.bloctel.gouv.fr Dans le cadre de la protection des Données personnelles, nous vous invitons à ne pas inscrire de Données sensibles dans le champ de saisie libre.
Ce site est protégé par reCAPTCHA, les Politiques de Confidentialité et les Conditions d'Utilisation de Google s'appliquent.

Découvrir nos outils