Espace propriétaire
fr

Votre recherche

Nouveauté
L'Arbresle (69210)

3 pièces - 72,98 m²

APPARTMENT T3 72.8 M² AVEC PLACE DE PARKING

270 000 €
Ref : RCVAP490006773
Découvrir le bien

En exclusivité chez VMA IMMO. CENTRE DE L'ARBRESLE,

Frais de notaire réduits

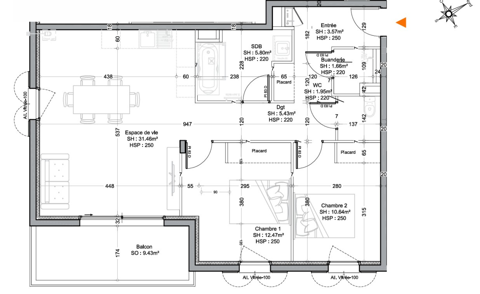
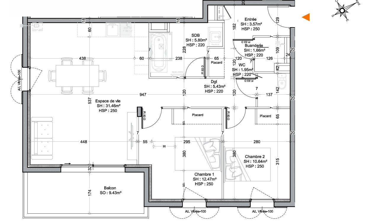
À deux minutes à pied de la gare (30 minutes de Lyon avec le Tram train), des écoles et des commerces, venez découvrir cet appartement situé au 2ème étage d'une résidence de 2024 intimiste et sécurisée de 13 logements. Vous découvrirez une entrée, une buanderie et vous profiterez du séjour-salon ouvert sur la cuisine d'une 29,55m² m2 et donnant directement sur le balcon de 9,43m² et dans la partie nuit, une chambre avec placard, une salle de bain avec baignoire et un WC. L'appartement bénéficie d'une place de parking. Chauffage individuel au gaz. Mandat n°3685 Vous souhaitez plus d'informations, contactez-moi, je me ferais un plaisir de vous renseigner et vous accompagner dans ce projet. Cécile REILLE, conseiller immobilier indépendant - Enregistré sous le n°915173132 Lyon. Les honoraires d'agence sont intégralement à la charge du vendeur.

TRAD_ZEPHYR_Caracteristique TRAD_ZEPHYR_Valeurs
Code postal 69210
Surface loi Carrez (m²) 72,98 m²
Nombre de chambre(s) 2
Nombre de pièces 3
Etage 2
Ascenseur OUI
TRAD_ZEPHYR_Caracteristique TRAD_ZEPHYR_Valeurs
Nb de salle de bains 1
Cuisine Américaine
Mode de chauffage Gaz de ville
Type de chauffage Chaudière
Format de chauffage Individuel
Visiophone OUI
Balcon OUI
Terrasse NON
Murs mitoyens 2
Cave NON
Exposition Sud-Est
Année de construction 2024
TRAD_ZEPHYR_Caracteristique TRAD_ZEPHYR_Valeurs
Copropriété OUI
nombre de lots 13
plan de sauvegarde NON
TRAD_ZEPHYR_Caracteristique TRAD_ZEPHYR_Valeurs
Prix de vente honoraires TTC inclus 270 000 €
DPE GES
Contacter pour ce bien
L'agence
Téléphone 04 69 84 15 15
Adresse
19 rue des Rosiéristes 69410 Champagne-au-Mont-d'Or

* Champ obligatoire

Les informations recueillies sur ce formulaire sont enregistrées dans un fichier informatisé par La Boite Immo agissant comme Sous-traitant du traitement pour la gestion de la clientèle/prospects de l'Agence / du Réseau qui reste Responsable du Traitement de vos Données personnelles. La base légale du traitement repose sur l'intérêt légitime de l'Agence / du Réseau. Elles sont conservées jusqu'à demande de suppression et sont destinées à l'Agence / au Réseau. Conformément à la loi « informatique et libertés », vous disposez des droits d’accès, de rectification, d’effacement, d’opposition, de limitation et de portabilité de vos données. Vous pouvez retirer votre consentement à tout moment en contactant directement l’Agence / Le Réseau. Consultez le site https://cnil.fr/fr pour plus d’informations sur vos droits. Si vous estimez, après avoir contacté l'Agence / le Réseau, que vos droits « Informatique et Libertés » ne sont pas respectés, vous pouvez adresser une réclamation à la CNIL. Nous vous informons de l’existence de la liste d'opposition au démarchage téléphonique « Bloctel », sur laquelle vous pouvez vous inscrire ici : https://www.bloctel.gouv.fr Dans le cadre de la protection des Données personnelles, nous vous invitons à ne pas inscrire de Données sensibles dans le champ de saisie libre.
Ce site est protégé par reCAPTCHA, les Politiques de Confidentialité et les Conditions d'Utilisation de Google s'appliquent.

Découvrir nos outils